5 pokoi
128.65 m²
5 433,35 zł/m2
LDR-DS-4802
Oblicz ratę kredytu

699 000 zł

Dom na sprzedaż
Nowa oferta

Szczegóły oferty

Inwestycja Nowe Domy, Tychy, ul. Jaskrów 82/84.
Symbol oferty LDR-DS-4802
Powierzchnia 128,65 m²
Powierzchnia działki [m2] 302 m²
Liczba pokoi 5
Standard
Garaż w budynku
Okna nowe PCV
Balkon brak
Pokrycie dachu dachówka ceramiczna
Ogrodzenie działki siatka w ramach
Bartosz Gierszon ; Mariusz Gierszon

Bartosz Gierszon ; Mariusz Gierszon

Napisz wiadomość 23 Ofert

Opis nieruchomości

Oferujemy sprzedaż domu w stanie surowym zamkniętym z wykończoną elewacją. Nieruchomość o powierzchni 128,65m2 z garażem. Dom w Tychach przy ul. Jaskrów 84 G na działce o powierzchni 302 m2 .

Jednorodzinny dom w zabudowie bliźniaczej ze skośnym dachem. Segment oddzielony podwójnym murem i dylatacją.

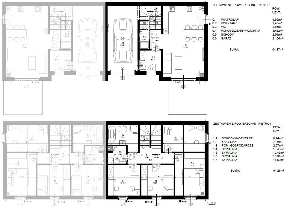
Na parterze znajduję się wiatrołap z miejscem na szafę, duży salon z otwartą kuchnią, łazienka dla gości, garaż jednostanowiskowy. Na piętro prowadzą schody wylewane, które można pokryć dowolnym materiałem. Piętro posiada cztery niezależne sypialnie, dużą prywatną łazienkę, pomieszczenie gospodarcze.

Dodatkowym atutem, a zarazem powierzchnią do wykorzystania jest poddasze, które jest dość wysokie. Zapewni ono dużą przestrzeń do zagospodarowania wedle własnego uznania.

Dostępne media: woda, prąd (+siła), kanalizacja sanitarna, kanalizacja deszczowa . Na działce jest zbiornik z którego można wykorzystać wodę opadową. Brak gazu z przyczyn ekologicznych, przewidywane ogrzewanie za pomocą pompy ciepła. Dostępny światłowód internetowy.

Drogi prowadzące do osiedla należą do gminy i są pokryte asfaltem. Osiedlowe drogi wewnętrzne wykończone w kostce brukowej. 

Ściany budynku zbudowane z pustaka ceramicznego z zewnątrz ocieplone styropianem 20 cm. . Dom oddzielony podwójnym murem z dylatacją i styropianem. Ściany zewnętrze domu wykończone oraz otynkowane w kolorach szaro-antracytowych. Dach skośny pokryty dachówka ceramiczną koloru antracytowego. Rynny z tworzywa posiadające osadnik rynnowy. Zapewniamy ciepły montaż okien co zapewnia szczelność i znaczne obniżenie kosztów ogrzewania. Okna PCV, trzyszybowe, od wewnątrz białe, z zewnątrz antracytowe. Wszystkie okna na piętrze i parterze wraz z dużym tarasowym posiadają elektryczne rolety zewnętrzne, schowane w elewacji. Zamontowane parapety zewnętrzne zamontowane na styrodurze (XPS) – ciepły montaż. Zostały także wygłuszone, co daje większy komfort podczas opadów. Eleganckie drzwi wejściowe z nowoczesnym długim pochwytem, szklone typu lustro weneckie. Brama garażowa koloru antracytowego, z możliwością automatycznego otwierana na pilot lub manualnie na klucz.

Zagospodarowanie terenu: wybrukowane drogi osiedlowe, podjazd do garażu z kostki brukowej, prywatna działka wyrównana i ogrodzona siatką panelową koloru antracytowego,.

Świetna lokalizacja z dała od głównych dróg, cisza i spokój blisko centrum miasta ale posiadająca doskonałe połączenie do głównych dróg: Katowice-Bielsko, Mikołów-Oświęcim.

Domy o takich samych parametrach: Jaskrów 84 G,H,J,K,L,M.

Polecam i zapraszam umówić się na oględziny.


Kupujący zwolniony z płacenia podatku PCC(2%).

Powyższa oferta ma charakter informacyjny i nie stanowi oferty handlowej w rozumieniu art. 66 §1 Kodeksu Cywilnego.

Kalkulatory

Kalkulator kredytowy

Wysokość raty

PLN
%

Kalkulator kosztów

Taksa notarialna
(opłata notarialna)

Wniosek o wpis do KW

VAT od prowizji
agencji nieruchomości

VAT od taksy notarialnej
(opłaty notarialnej)

Prowizja agencji nieruchomości

Wypisy aktu notarialnego

Razem

Uwaga: mogą wystąpić dodatkowe opłaty za założenie księgi wieczystej oraz ustanowienie hipoteki.

PLN
PLN
PLN
PLN
PLN
%
PLN

Podobne oferty

Nowa oferta

Dom na sprzedaż

Tychy

5 pokoi 175 m2 5 079,42 zł/m2
Nowa oferta
Nowa oferta

Dom na sprzedaż

Tychy

5 pokoi 120 m2 6 562,97 zł/m2
Nowa oferta
Nowa oferta

Dom na sprzedaż

Tychy

5 pokoi 120 m2 6 562,97 zł/m2
Nowa oferta
Nowa oferta

Dom na sprzedaż

Tychy

5 pokoi 129 m2 5 277,89 zł/m2
Nowa oferta

Proszę wprowadzić poprawne imię i nazwisko
Proszę wprowadzić poprawny numer telefonu
Proszę wprowadzić poprawny adres e-mail
Proszę zaznaczyć wymagane zgody
Rozwiąż równanie:
29 2
Niepoprawny wynik