5 pokoi
175.02 m²
5 079,42 zł/m2
LDR-DS-4810
Oblicz ratę kredytu

889 000 zł

Dom na sprzedaż
Nowa oferta

Szczegóły oferty

Inwestycja Nowe Domy, Tychy, ul. Jaskrów 82/84.
Symbol oferty LDR-DS-4810
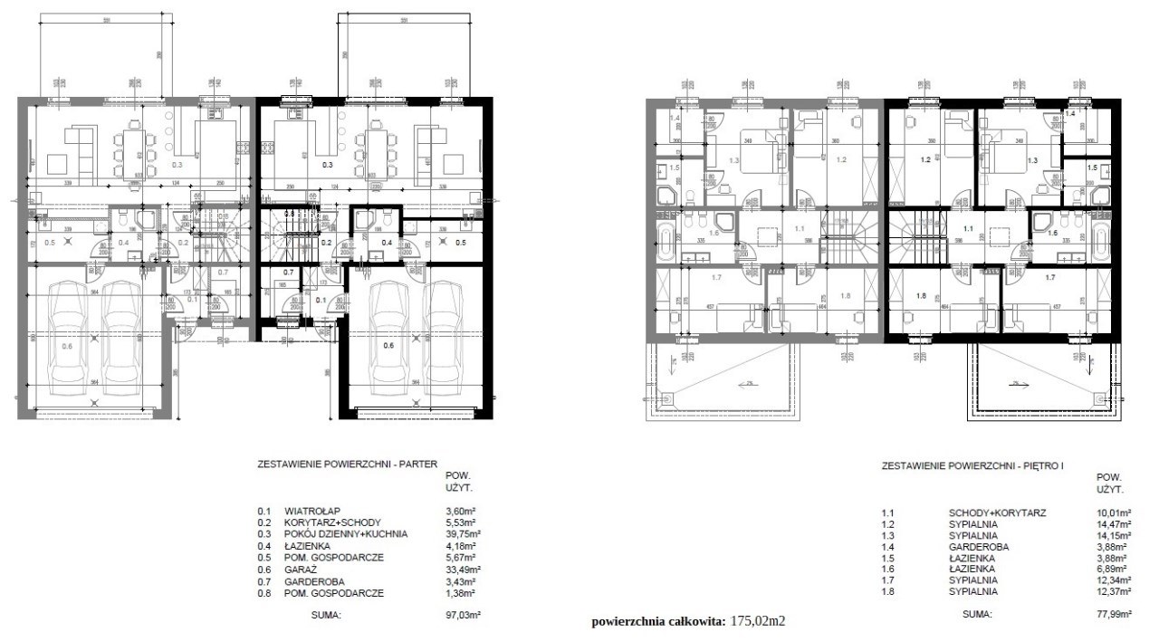
Powierzchnia 175,02 m²
Powierzchnia działki [m2] 307 m²
Liczba pokoi 5
Standard
Garaż na dwa samochody
Okna nowe PCV
Balkon brak
Pokrycie dachu dachówka ceramiczna
Ogrodzenie działki siatka w ramach
Bartosz Gierszon ; Mariusz Gierszon

Bartosz Gierszon ; Mariusz Gierszon

Napisz wiadomość 23 Ofert

Opis nieruchomości

Oferujemy sprzedaż domu w stanie surowym zamkniętym z wykończoną elewacją. Nieruchomość o powierzchni 175,02m2 z garażem dwustanowiskowym. Dom w Tychach przy ul. Jaskrów 84 C na działce o powierzchni 307 m2 .

Jednorodzinny dom w zabudowie bliźniaczej ze skośnym dachem. Segment oddzielony podwójnym murem i dylatacją.

Na parterze znajduję się wiatrołap, duży salon z otwartą kuchnią, łazienka dla gości, garderoba, garaż dwustanowiskowy, dwa pomieszczenia gospodarcze. Na piętro prowadzą schody wylewane, które można pokryć dowolnym materiałem. Piętro posiada cztery niezależne sypialnie, dwie łazienki, garderobę.

Dodatkowym atutem, a zarazem powierzchnią do wykorzystania jest poddasze, które jest dość wysokie. Zapewni ono dużą przestrzeń do zagospodarowania wedle własnego uznania.

Dostępne media: woda, prąd (+siła), kanalizacja sanitarna, kanalizacja deszczowa . Na działce jest zbiornik z którego można wykorzystać wodę opadową. Brak gazu z przyczyn ekologicznych, przewidywane ogrzewanie za pomocą pompy ciepła. Dostępny światłowód internetowy.

Drogi prowadzące do osiedla należą do gminy i są pokryte asfaltem. Osiedlowe drogi wewnętrzne wykończone w kostce brukowej.

Ściany budynku zbudowane z pustaka ceramicznego z zewnątrz ocieplone styropianem 20 cm. . Dom oddzielony podwójnym murem z dylatacją i styropianem. Ściany zewnętrze domu wykończone oraz otynkowane w kolorach szaro-antracytowych. Dach skośny pokryty dachówka ceramiczną koloru antracytowego. Rynny z tworzywa posiadające osadnik rynnowy. Zapewniamy ciepły montaż okien co zapewnia szczelność i znaczne obniżenie kosztów ogrzewania. Okna PCV, trzyszybowe, od wewnątrz białe, z zewnątrz antracytowe. Wszystkie okna na piętrze i parterze wraz z dużym tarasowym posiadają elektryczne rolety zewnętrzne, schowane w elewacji. Zamontowane parapety zewnętrzne zamontowane na styrodurze (XPS) – ciepły montaż. Zostały także wygłuszone, co daje większy komfort podczas opadów. Eleganckie drzwi wejściowe z nowoczesnym długim pochwytem, szklone typu lustro weneckie. Brama garażowa koloru antracytowego, z możliwością automatycznego otwierana na pilot lub manualnie na klucz.

Zagospodarowanie terenu: wybrukowane drogi osiedlowe, podjazd do garażu z kostki brukowej, prywatna działka wyrównana i ogrodzona siatką panelową koloru antracytowego,.

Świetna lokalizacja z dała od głównych dróg, cisza i spokój blisko centrum miasta ale posiadająca doskonałe połączenie do głównych dróg: Katowice-Bielsko, Mikołów-Oświęcim.

Domy o takich samych parametrach: Jaskrów 84, 84 A,B,C.

Polecam i zapraszam umówić się na oględziny.


Kupujący zwolniony z płacenia podatku PCC(2%).

Powyższa oferta ma charakter informacyjny i nie stanowi oferty handlowej w rozumieniu art. 66 §1 Kodeksu Cywilnego.

Kalkulatory

Kalkulator kredytowy

Wysokość raty

PLN
%

Kalkulator kosztów

Taksa notarialna
(opłata notarialna)

Wniosek o wpis do KW

VAT od prowizji
agencji nieruchomości

VAT od taksy notarialnej
(opłaty notarialnej)

Prowizja agencji nieruchomości

Wypisy aktu notarialnego

Razem

Uwaga: mogą wystąpić dodatkowe opłaty za założenie księgi wieczystej oraz ustanowienie hipoteki.

PLN
PLN
PLN
PLN
PLN
%
PLN

Podobne oferty

Nowa oferta

Dom na sprzedaż

Tychy

5 pokoi 175 m2 5 079,42 zł/m2
Nowa oferta
Nowa oferta

Dom na sprzedaż

Tychy

5 pokoi 120 m2 6 562,97 zł/m2
Nowa oferta
Nowa oferta

Dom na sprzedaż

Tychy

5 pokoi 120 m2 6 562,97 zł/m2
Nowa oferta
Nowa oferta

Dom na sprzedaż

Tychy

5 pokoi 129 m2 5 277,89 zł/m2
Nowa oferta

Proszę wprowadzić poprawne imię i nazwisko
Proszę wprowadzić poprawny numer telefonu
Proszę wprowadzić poprawny adres e-mail
Proszę zaznaczyć wymagane zgody
Rozwiąż równanie:
24 3
Niepoprawny wynik